Close Alert Banner
Skip to Content

Town of Midland Logo Town of Midland Logo

Contact Us
  • Living in Midland
    • Accessibility
    • Animal Services and Control
    • Booking Facilities
    • Building Services
    • Community Calendar
    • Community Safety
    • Contact Us
    • Engage Midland
    • Fire and Emergency Services
    • Garbage, Recycling and Waste
    • Hydro Services
    • Maintenance Operations
    • Parking in Midland
    • Parks, Trails and Outdoor Amenities
    • Property Standards
    • Property Taxes
    • Report an Issue
    • Roads and Transportation
    • Transit
    • Trees
    • Water and Sewer Services
    • Winter Maintenance
  • Community, Tourism & Culture
    • Arts and Culture
    • Beaches
    • Community Calendar
    • Community Grant Program
    • Community Groups and Organizations
    • Cruise Ships
    • Dine, See and Stay
    • Festivals and Events
    • Land Acknowledgement
    • Library
    • Midland Harbour
    • Municipal Accommodation Tax
    • Recreation Centre
    • Parks, Trails and Outdoor Amenities
  • Business & Development
    • Bid Opportunities
    • Building Services
    • Business Directory
    • Business Permits and Licences
    • Committee of Adjustment
    • Economic Development
    • Engineering and Development Standards
    • Fees and Charges
    • Midland Bay Landing
    • Municipal Accommodation Tax
    • Outdoor Patios
    • Planning and Development
  • Town Hall
    • Accessibility
    • Accountability and Transparency
    • Agendas and Minutes
    • Applications, Licences and Permits
    • Bid Opportunities
    • Boards and Committees​
    • Budgets and Finance
    • By-laws
    • Careers
    • Contact Us
    • Council
    • Elections
    • Freedom of Information
    • Integrity Commissioner and Code of Conduct
    • Land Acknowledgement
    • Marriage Licences
    • Mayor's Office
    • News and Notices
    • Plans, Reports and Studies
    • Property Damage Claims
    • Report an Issue
    • Strategic Plan
I Want To...
x

I Want To...

Apply or Register

  • Building Permit
  • Change my Address
  • Job Postings
  • Special Event Permits
  • Bid Opportunities

Pay

  • Dog Tags
  • Facility Rental
  • Parking Ticket
  • Property Taxes
  • Water and Sewer Bill
  • Open Air Burn Permit

Find or View

  • Agendas and Minutes
  • By-laws
  • Festivals and Events
  • Parks, Trails and Beaches
  • Parking in Midland
  • Transit Information

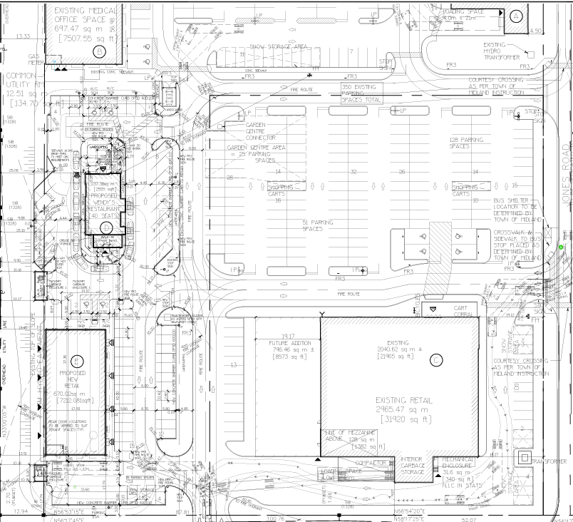
Planning Application No. SPA-01-20 for 952 Jones Road

  • Open new window to share this page via Facebook Facebook
  • Open new window to share this page via Twitter Twitter
  • Email this page Email

Applicant 

Owner: Highway 12 Developments Inc
Agent: Not applicable
Phone: Not applicable
Email: Not applicable

Proposed Development 

The purpose of the application is to amend the existing site plan agreement to add an additional building to the lands for an eating establishment.

Front Elevation

Front Elevation

Supporting Documents 

Partial Site Plan
Elevations 1
Elevations 2

Status 

The Site Plan application has been approved..

Site Plan

Site Plan

Contact Us

Subscribe to page updates

 

#townofmidland

Share what you love about the Town of Midland! Get inspired by exploring photos and stories shared by residents and visitors like you.
To see more, follow us on Facebook, Twitter, and Instagram.

instagram:139a7888-f53e-4cd0-85fd-7dc3c83fdeab

Town of Midland - Footer Logo

View our Facebook Page View our Twitter Page View our Instagram Page View our YouTube Page View our LinkedIn Page
Our Partners:
  • Huronia Airport
  • Huronia Museum
  • Midland Public Library
  • NT Power
  • Route 93 Innovation Hub
  • SSEA
© 2025 Town of Midland
  • Careers
  • Contact Us
  • Disclaimer
  • Land Acknowledgement
  • Privacy Policy
  • Sitemap
  • Website Feedback

By GHD Digital

Close Old Browser Notification
Browser Compatibility Notification
It appears you are trying to access this site using an outdated browser. As a result, parts of the site may not function properly for you. We recommend updating your browser to its most recent version at your earliest convenience.